top of page

Casa Mara e Maciel
Construção nova | Residencial
Bragança Paulista/SP
2017
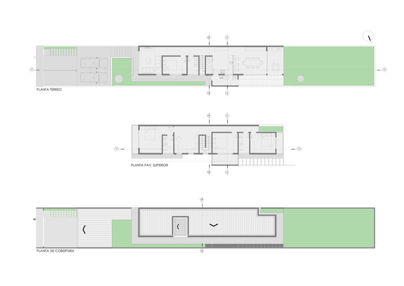
O desafio deste projeto era encaixar o programa apresentado pela família em um terreno estreito e comprido.
O projeto foi pensado de forma a valorizar a iluminação e ventilação natural, e ainda o conforto da família no novo sobrado. Logo a frente do terreno, fica a sala, voltada para a rua, um dormitório de hóspedes com banheiro e a cozinha integrada com a sala de jantar e espaço da churrasqueira e quintal dos fundos também integrados. No pavimento superior, a edificação conta com a suíte do casal e mais dois dormitórios para os filhos. O pedido especial era uma saleta de oração com conceito aberto e integrado com a circulação.
Projeto final
Estudo Preliminar
Veja também as Variantes do projeto apresentadas na primeira etapa.
Variante 01
Variante 02
Variante 03
Coautoria do Projeto
Mattheus Gropp
Paula de Castro
Maria Brasil
bottom of page












